План-конспект уроків 32-33 Види, призначення класифікація та правила використання інструментів обладнання, інвентарю. Група 1
PH 2. Виконувати ремонт штукатурки
Оштукатурювання поверхонь – досить відповідальний процес, і якісний результат можна отримати, якщо забезпечити все необхідне. Окрім дотримання правил і технології, важлива наявність якісного інструменту.
При штукатуренні стель і стін, особливо виконуючи невеликий обсяг робіт або працюючи в незадовільних умовах, поряд з механізованим інструментом (ручні машини) застосовують ручні будівельні та контрольно–вимірювальні інструменти.
Оштукатурювання поверхонь складається з кількох етапів, на кожному з яких використовують певні інструменти, пристрої та інвентар.
Від того, наскільки добре підготовлена поверхня, залежатиме результат усієї роботи.
Інструменти для підготовки поверхні
Для підготовки поверхонь під штукатурення, нанесення та розрівнювання штукатурного розчину, застосовують ручні та механізовані інструменти. Механізовані інструменти полегшують працю штукатура і прискорюють виконання штукатурних робіт.
Металева щітка – для очищення поверхні від напливів розчину, бітумних плям, залишків неводної фарби.

Штукатурний молоток – для очищення поверхні від напливів розчину, для допоміжних операцій з підготовки поверхні до штукатурення.

Інструмент з кайлом, що допомагає підготувати стіни до штукатурних робіт. З його допомогою легко відбити виступаючі частини стін (іноді простіше прибрати виступаючу ділянку, ніж накидати розчин по всій стіні до цього рівня), зробити насічки тощо. Заміною такого молотка може служити топірець.
Штукатурний молоток з кайлом дозволяє виконувати безліч робіт, в тому числі і по підготовці поверхні стін.
Молоток-кулачок з широкими обушками масою від 1 до 1,5 кг. Його застосовують для завдання ударів по зубилу, киянці, зубчатці.

Ножівка по дереву – для допоміжних операцій з підготовки дерев'яної поверхні до штукатурення.

Ножиці по металу використовують для вирізання сталевих профілів до шаблонів, різання сітки. Більш зручні та безпечні в роботі ножиці з вигнутими ручками. Під час роботи такими ножицями руки завжди розташовані вище країв сітки, що відрізається, а це зменшує небезпеку травмування.

Ніж для опоряджувальних робіт – для розшивання тріщин.

Шпатель – для розшивання тріщин.

Скарпель – для сколювання нерівностей на кам'яних і бетонних поверхнях.

Бучарда – створення шорсткості на бетонних поверхнях. Молоток масою до 1,5 кг. На торцях насічено від 16 до 36 зубчиків пірамідальної форми. Застосовують бучарди для ущільнення декоративної штукатурки на цементному в'яжучому (кам'яних і теразитових) та для підготовки кам'яних, цегляних, бетонних поверхонь. Виготовляють їх з інструментальної (міцної) сталі.

Зубило, зубчатка, троянка застосовуються для вибірки швів у цегляному та кам'яному муруванні, насічення декоративної штукатурки, підготовки поверхні.

Скребачка призначена для очищення поверхні від бруду та напливів розчину. Полотно виготовлене з листової вуглецевої сталі завтовшки 2 мм, ручка – діаметром 17 мм. Полотно до ручки кріпиться заклепками. Скребачка має антикорозійне покриття – бітумний лак.
Скребачка складається: 1 – ручка; 2 – полотно.

Будівельний перфоратор – ручна ударна машина для обробки будівельних матеріалів. Служить для подрібнення чи буріння отворів у будівельних матеріалах.

Крім розглянутих інструментів при штукатурних роботах використовують: сокиру, рашпіль, кусачки, тощо.

Інструменти для нанесення розчину на поверхні
Кельма або штукатурна лопатка – призначена для перемішування сухих сумішей, й розчинів накидання, розрівнювання, підмазування, загладжування розчинової суміші; очищення інструменту, інвентарю і пристосування від розчину.
Складається з міцного сталевого полотна завтовшки до 1,5 мм, колодочки з коліном (висота дерев'яної ручки, насадженої на колодочку, 50 мм). Інструмент виготовляють з полотном двох розмірів – 180x150 і 200x150 мм.
Для виконання штукатурних робіт за сучасною технологією застосовують різні кельми з нержавіючої сталі.

Сокіл – призначений для утримання розчинової суміші при накиданні його кельмою та для намазування і розрівнювання розчину на поверхні.
Інструмент складається зі щита з ручкою посередині. Виготовляють щит із дерева або дюралюмінію. За видом матеріалу соколи бувають дерев'яними або дюралевими, можуть мати гладку квадратну форму, або тарілчасту (для утримання порції рідких декоративних чи звичайних розчинів).

Ківш – призначений для накидання розчинової суміші на поверхню та дозування матеріалів. Складається з чаші (ковша), колодочки, дерев'яної ручки і гачка, за допомогою якого ківш вішають на борт ящика. Повна місткість ковша становить 1,1 л, робоча – 0,8 л.

Інструменти для розрівнювання та затирання штукатурних шарів
Дерев'яний півтерок – для вирівнювання та згладжування окремих шарів штукатурки.

Напівтерки виготовляють з пінопласту і деревини хвойних порід та складаються вони з полотна і ручки.
Залежно від розмірів півтерки поділяються на:
- короткі – довжина полотна від 150 до 500 мм;
- середньої довжини – довжина полотна півтерка 500-1000 мм;
- довгі – довжина полотна становить 1000-2000 мм.
Ширина всіх видів півтерків коливається від 20 до 150 мм, а товщина – від 5 до 30 мм.

Фасонні напівтерки дерев'яні або алюмінієві використовують для опорядження кутів. Півтерок для опорядження внутрішнього кута називають лузговим, зовнішнього – усьоночним. Для зручності в роботі їх роблять з двома ручками.

Терка для затирання штукатурного шару і дозволяє вирівняти поверхню до ідеального стану. Вона складається з полотна та ручки. Терку виготовляють з деревини сосни або ялини, дюралюмінію, оцинкованої сталі, нержавіючої сталі, пінопласту, а покриття полотна – з фетру, губки, пінопласту.

Гладилки застосовують для загладжування штукатурки. Це більш продуктивно, ніж затирання терками. Гладилки бувають сталеві та дерев'яні.

Швейцарські гладилки призначені для нанесення і загладжування сумішей на великих поверхнях, шпатлювання і вирівнювання. Оптимальна довжина гладилки 600-700 мм.
Зубчаста швейцарська гладилка призначена для нанесення і "розчісування" клейового розчину перед зануренням армуючої сітки на великих площах. Допомагає виконати шар розчину нестабільної товщини. Розмір зубців 8х8 або 10х10 в залежності від вимог виробника фасадної системи.

Правило – для розрівнювання шарів штукатурки.

Щітка – для збризкування поверхні штукатурки в процесі затирання.

Контрольно-вимірювальні інструменти
Рулетка – контрольні заміри поверхні штукатурки.

Шнур-висок – контроль вертикальності кутів, для провішування поверхонь.

Кутник – контроль елементів поверхні штукатурки.

Рівень – для контролю якості оштукатуреної поверхні.

Розмічувальний шнур використовують для нанесення розмічувальних смуг на поверхні. Має пластиковий корпус, барабан, ручку, котушку з фарбувальним шнуром. Довжина до 30 м.

Гнучкий водяний рівень застосовують для провішування горизонтальних поверхонь або розмітки горизонтальних ліній на стінах. Цей рівень складається з гумової трубки завтовшки 10-15 мм необхідної довжини. На кінцях гумової трубки вставлені скляні трубки завдовжки 200-300 мм з поділками. Діє за принципом сполучених посудин: на рівній горизонтальній поверхні рівень води, що визначається поділками, має бути однаковим.

Рівень лазерний має кнопку горизонтальної та вертикальної смуг, вихід лазерного променя, поворотну головку, блокувальну кнопку. Потужність лазера 1 м Вт, відстань 5 м. Використовують для встановлення горизонтальних та вертикальних позначок, як окремо так і одночасно.

Нівелір лазерний зі штативом використовують для розбивки вертикальних, горизонтальних та поверхонь із нахилом. Для робочої висоти від 52 до 147 см. Час максимальної роботи – 18 годин в 1-променевому режимі.

Пристрої для виконання опоряджувальних робіт на висоті
Внутрішні штукатурні роботи на висоті до 4 м виконують з козлів, інвентарних столиків, а у виняткових випадках при невеликих обсягах ремонтних робіт – з розсувних драбин. Зовнішні і внутрішні роботи на висоті понад 4 м виконують з люльок, пересувних вишок або риштувань.
Дерев'яні козли заввишки 90-120 см (залежно від висоти приміщення) виготовляють із соснових дощок і застосовують при невеликих обсягах опоряджувальних робіт.
У масовому будівництві користуються металевими інвентарними столиками.
Пересувний різновисотний столик (рис. 1, а) виготовляють із труб або кутникової сталі. Він складається з чотиристоякового опорного каркаса, драбини і дерев'яного настилу. У кожній конструкції столика передбачено піднімання настилу за рахунок висувних стояків, які переміщують уздовж нерухомих стояків і закріплюють штирями або спеціальними затискними гвинтами на потрібній висоті (від 0,7 до 1,7-2,5 м). Як настил використовують інвентарний дерев'яний щит розміром від 60х120 до 80x160 см. Для влаштування штукатурного помосту водночас встановлюють кілька столиків на певній відстані один від одного, а прольоти між ними перекривають інвентарними щитами.
Двовисотний столик (рис. 1, б) складається з опорного каркасу, драбини, захисних засобів (поручнів), наcтилу і полиці для розміщення пристроїв та інструменту. Столик призначений для виконання опоряджувальних робіт в приміщеннях заввишки 2,5-2,7 м. Конструкція його дає змогу фіксувати положення настилу на двох рівнях: 0,7 і 0,9 м. Робоча площадка столика має розмір 60x100 см, маса його становить 22 кг.

Рис. 1. Пересувні інвентарні столики:
а – різновисотннй, б – двовисотний; в – універсальний; 1 – нерухомий стояк, 2 – драбина, 3 – висувний стояк, 4 – настил, 5 – штир, 6 – підкіс, 7 – полиця; 8 – поручні
Універсальний столик (рис. 1, в) складається з чотиристоякового прямого опорного каркасу, різновисотного опорного каркасу, драбини, настилу і полиці. Столик призначений для виконання опоряджувальних робіт в приміщеннях заввишки 2,5-2,7 м, а також у сходових клітках. Конструкція його дає змогу фіксувати положення настилу у двох рівнях. Працюючи у звичайному приміщенні, настил можна встановити на висоті, 0,7 або 0,9 м. Для роботи на сходовій клітці до столика приєднують різновисотний опорний каркас, обладнаний підкосом. При такому положенні столика настил можна встановити на висоті 0,75 або 0,95 м. Робоча площадка столика становить 60x100 см, маса його – 24 кг.

Рис. 2. Розсувні драбини: а – дерев'яна, б – металева
Розсувні драбини (рис. 2) виготовляють із деревини або металевих труб діаметром 22,5 мм. Дерев'яна розсувна драбина складається з двох драбин, з'єднаних у верхній частині спеціальним металевим шарніром, який фіксує П положення при максимальному розсуванні і застерігає від самовільного розсування. Якщо шарніра немає, то робоче положення розсувної драбини фіксується двома металевими гачками завдовжки 70-100 см. Висота розсувної драбини становить 2,0-2,8 м.
Для роботи у низьких приміщеннях краще застосовувати металеві розсувні драбини, обладнані фіксуючим пристроєм і полицею, які у неробочому стані легко складаються. Укладаючи на них інвентарні щити або дошки, можна робити легкі риштування.
Для виконання дрібних ремонтних робіт використовують приставні драбини різної довжини. Щоб запобігти ковзанню драбини під час роботи, її кінці обмотують ганчірками або прибивають гумові пластинки.

Рис. 3. Люльки:
а – самопідіймальна ТП 11, б – самопідіймальна одномісна ЛОС-100-120, 1 – каркас, 2 – електролебідки, 3 – поручні, 4 – настил, 5 – захисний борт
Люльки застосовують при фарбуванні фасадів будинків. За принципом переміщення вони бувають самопідіймальні, обладнані електролебідками, та такі, які піднімають за допомогою лебідок, встановлених на землі. Самопідіймальні люльки різних марок ЛОС-100-120, ЛС-80-250, ЛЭ-30-250, ЛП-11М, ТП-11 тощо відрізняються одна від одної габаритними розмірами та тонажністю.
Зручна в експлуатації самопідіймальна люлька ТП-11 (рис. 3, а) призначена для піднімання двох робітників і 100 кг вантажу на висоту до 100 м. Робоча площадка люльки розміром 0,97х4,4 м витримує навантаження до 300 кг. Люлька складається з металевого каркасу (1) з поручнями (3), двох електролебідок (2), суцільного металевого настилу (4) із захисним бортом (5) завширшки 15 см. Піднімають люльку за допомогою двох сталевих тросів, які перекидаються через блоки, розміщені на кінцях консольних балок, що закріплюються на даху або горищному перекритті. Після включення лебідок в електромережу троси починають намотуватись на відповідні барабани лебідок і піднімають люльку. При переключенні лебідки на зворотний рух троси розмотуються і люлька опускається.
Для виконання дрібних ремонтних робіт на фасадах будинків і фарбування ринв застосовують одномісну самопідіймальну люльку ЛОС-100-120 (рис. 3, б). Вона складається з металевого каркаса (1), електролебідки (2), суцільного металевого настилу (4) із захисним бортом (5) 15 см завширшки. Люлька призначена для піднімання одного робітника і 20 кг вантажу на висоту до 100 м. Піднімається люлька за допомогою одного троса.

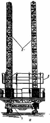
Рис. 4. Пересувні вишки:
а – самопідіймальна BO-10,6–12; б – збірно-розбірна; 1 – візок, 2 – колони, 3 – платформа, 4 – поручні, 5 – настил, 6 – каркас, 7 – драбина
Пересувні вишки бувають самопідіймальні та збірно-розбірні, їх використовують для фарбування фасадів три-, чотириповерхових будинків і для робіт всередині будівель.
Пересувна, самопідіймальна вишка ВО-10,6-12 (рис. 4, а) складається з двох колон (2), двох візків та робочої платформи (3). Платформа за допомогою лебідки з електроприводом пересувається вздовж колон, як напрямних, з відмітки 1,25 до 10,6 м і може зупинятись на різних висотах у цих межах. Розмір робочої площадки платформи становить 2x4 м. Переміщення платформи здійснюється з пульта управління, що міститься на ній. Якщо електроенергії немає, то платформа пересувається за допомогою ручного привода лебідки, обладнаного поряд з електричним. Вишка спирається на чотири колеса з гумовими ободами.
На нове місце роботи у межах одного будинку вишку пересувають вручну, попередньо опустивши платформу до нижньої відмітки 1,25 м. Максимально допустиме навантаження на платформу 500 кг.
Пересувна збірно-розбірна вишка (рис. 4, б) дає змогу виконувати опоряджувальні роботи на висоті до 6 м. Вона складається з металевого збірного каркаса (6), що спирається на чотири колеса, драбини (7), захисного поручня (4) та дерев'яного настилу (5). На робочому місці вишку збирають із окремих секцій, нарощуючи їх до потрібної висоти. Розмір робочої площадки вишки становить 2х2 м; максимально допустиме навантаження – 200 кг.
У межах приміщення або фасаду будинку вишку пересувають вручну.

Рис. 5. Трубчасті безболтові риштування:
1 – опора, 2 – прогін, 3 – дерев'яний настил, 4 – поручні, 5 – поперечка
Інвентарні риштування бувають дерев'яні, трубчасті, струнні (підвісні) тощо.
Трубчасті безболтові риштування (рис. 5) застосовують для штукатурення фасадів будинків заввишки до 40 м. Вони складаються з опор, прогонів, поперечок, поручнів та дерев'яного настилу. До кінців прогонів і поперечок приварено гачки, а вздовж опор на відстані 2 м один від одного – спеціальні патрубки. Під час монтажу риштувань гачок прогону вставляють у патрубок опори. Опори встановлюють вздовж стіни на відстані 2 м одна від одної.
Башмаки опор спираються на дерев'яні підкладки, підмощені під кожну пару опор. Риштування завширшки 2 м прикріплюють до стін гачками, які встановлюють у петлі анкерних болтів, заздалегідь закріплених у стіні.
На прогони укладають інвентарні дерев'яні щити. Настили риштувань обгороджують інвентарним поручнем заввишки не менш як 1 м, у нижній частині якого закріплюють бортову дошку. Окремі яруси риштувань сполучають сходами.
Роботи на висоті понад 4 м найчастіше виконуються з риштувань.

Рис. 6. Підвісні (струнні) риштування:
1 – консоль, 2 – поручні, 3 – бортова дошка, 4 – дерев'яний настил, 5 – струни, 6 – шарніри
Підвісні (струнні) риштування (рис. 6) підвішують до металевих або дерев'яних консольних балок, які закріплюють під дахом. Струни риштувань складаються з окремих ланок завдовжки 4 м кожна. До струн приварені спеціальні гачки, в які закладають прогони настилу, поручні та бортову дошку. Відстань між струнами вздовж стіни становить 2,5-4,0 м; ширина настилу – 2,0-2,5 м. Щоб риштування не розгойдувались, їх у деяких місцях прикріплюють до стіни спеціальними жорсткими стяжками.
Інвентар для виконання штукатурних робіт
Ящик для розчину – використовують для приготування розчину.

Відро металеве – використовують, як посуд для води для приготування розчину.

Лопата сталева – використовують для подачі і перемішування розчину.

Віник – призначений для очищення поверхні та прибирання робочого місця.

З МЕТОЮ ЗАКРІПЛЕННЯ, ПОВТОРЕННЯ ТА УСВІДОМЛЕННЯ ОТРИМАНИХ ЗНАНЬ, ВИКОНАЙТЕ ЗАПРОПОНОВАНІ МУЛЬТИМЕДІЙНІ ВПРАВИ ПЕРЕГЛЯНЬТЕ НАВЧАЛЬНІ ФІЛЬМИ ДЛЯ БІЛЬШ ГЛИБОКОГО ВИВЧЕННЯ ТЕМИ "ІНСТРУМЕНТИ"
Заповнити таблицю.
Ящики, металеві марки, напівтерок, малки, рівень, відра, штукатурна кельма, маяки, візок з посудиною для розчину, штукатурний малий ящик, затискачі для інвентарних маяків, шаблони, ківш, лопати, терки, молоток , терка, гладилка, сито, бочка.
Інвентар |
Інструменти
|
Пристрої |
|
|
Використані джерела:
Превір себе


Коментарі
Дописати коментар